Ricerca rapida
-
-
CERCA

Conegliano
CONEGLIANO CENTRO STORICO: APPARTAMENTO MQ.160 COMPLETAMENTE RISTRUTTURATO

Appartamento

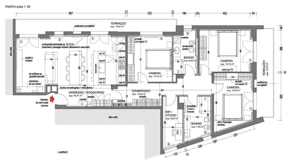
Conegliano centro storico: vendiamo appartamento completamente ristrutturato di mq. 163 catastali (mq. 130 ca. calpestabili) posto al quarto piano di condominio signorile e dotato di cantina di mq. e piccolo garage di mq. 10, così composto: ingresso, ampia e luminosa zona giorno con uscita su terrazzo in lunghezza di mq. 15 ca, disimpegno arredabile, 3 camere matrimoniali di cui 2 con uscita su terrazzo in lunghezza di mq. 10 ca, studio e 2 bagni. Dispone inoltre di garage e cantina.
Per maggiori dettagli contattare l'Agenzia. Rif. FZ196

Principali caratteristiche :

• Posizione in centro storico.
• Ampia e luminosa zona giorno.
• 3 camere matrimoniali + studio.
• Dotato di garage e cantina.
• Buon contesto abitativo.
• Completamente ristrutturato.

Cosa aspetti...? Chiamaci o whatsapp 348.2663474. Rif. FZ196

Vuoi vendere il tuo immobile ?
Affidati a un gruppo di professionisti di zona
GRUPPO AGENZIE IMMOBILIARI DI MARCA
• Querini Immobiliare - Conegliano
• Immobiliare San Rocco - Conegliano
• Agenzia Imm.re Monticella - Conegliano
• Agenzia Imm.re Pompeo Manuel - Susegana
• Immobiliare La Decisa - Vittorio Veneto
• Abitare & Moret - Vittorio Veneto
• Castagner Studio Immobiliare - Vittorio Veneto
• Immobiliare Mara Giacomini - Vittorio Veneto
• Agenzia Imm.re La Maison - Cappella Maggiore
• Agenzia Imm.re Zanette - Colle Umberto
• Agenzia Imm.re La Pieve - Pieve di Soligo
• Agenzia Imm.re Il Maso - Follina

Un solo incarico, 12 professionisti al tuo fianco

Si precisa che gli indirizzi presenti negli annunci non sono identificativi dell'ubicazione esatta dell'immobile, ma danno un riferimento generico della zona al fine di tutelare la riservatezza e la privacy dei proprietari.

Per maggiori dettagli contattare l'agenzia. Rif. FZ196
Linea info whatsapp : 348.2663474

Caratteristiche

Codice
FZ196Q
Prezzo
295.000,00 EUR
Mq
172
Classe
A
Locali
8,5
Camere
3
Bagni
2
Box
1
Mq Box
10
Stato Immobile
Ristrutturato
Posizione
Centro Storico
Orientamento
Sud Ovest
Totale Piani
Cinque
Lati Liberi
2
Riscaldamento
Conta Calorie
Tipo Riscaldam.
Caldaia a Condensazione
Fonte Energetica
Metano
Cantina - Solaio
Cantina
Accessori
Aria Condizionata, Ascensore, Porta Blindata, Tripli Vetri, Video Citofono

MAPPA

Via Caronelli 999, Conegliano (TV)
Richiedi informazioni
Codice:
Nominativo: *
Telefono: *
Email: *
Descrivici l'immobile che stai vendendo. Ti contatteremo a breve per concordare insieme la migliore strategia per venderlo al meglio: *
Autorizzo il trattamento dei miei dati personali in base Regolamento UE n. 679/2016 - Privacy Policy
Invia
Cookie preference