Ricerca rapida
-
-
CERCA

Spresiano (Visnadello)
VISNADELLO: DUPLEX 2 CAMERE 2 BAGNI CON GARAGE

Appartamento

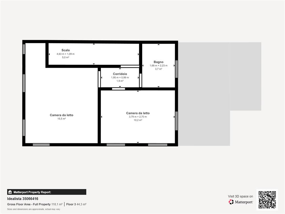
Spresiano: in zona Visnadello proponiamo in vendita appartamento su due livelli con ingresso indipendente, posto al primo piano di casa storica, così composto: ingresso a piano terra, salendo al primo piano troviamo il soggiorno, cucina separata e bagno; al secondo piano camera matrimoniale, camera singola e secondo bagno. Completa l'immobile un garage di buone dimensioni al piano terra.
L'immobile si presenta in discrete condizioni generali, avendo beneficiato di lavori di adeguamento nel 1993, e si presenta abitabile con riscaldamento autonomo con caldaia a metano e termosifoni in ghisa. La zona è tranquilla ma vicina a tutti i servizi. Non ci sono spese condominiali.

Per maggiori dettagli contattare l'Agenzia. Rif. FZ200

Principali caratteristiche :

• Ingresso indipendente.
• 2 camere e 2 bagni.
• Zero spese condominiali.
• Garage di buone dimensioni.
• Contesto abitativo tranquillo ma vicino ai servizi.

Cosa aspetti...? Chiamaci o whatsapp 3️⃣4️⃣8️⃣ 2️⃣6️⃣6️⃣3️⃣4️⃣7️⃣4️⃣
Rif. FZ200

Vuoi vendere il tuo immobile ?
Affidati a un gruppo di professionisti di zona
GRUPPO AGENZIE IMMOBILIARI DI MARCA
• Querini Immobiliare - Conegliano
• Immobiliare San Rocco - Conegliano
• Agenzia Imm.re Monticella - Conegliano
• Agenzia Imm.re Pompeo Manuel - Susegana
• Immobiliare La Decisa - Vittorio Veneto
• Abitare & Moret - Vittorio Veneto
• Castagner Studio Immobiliare - Vittorio Veneto
• Immobiliare Mara Giacomini - Vittorio Veneto
• Agenzia Imm.re La Maison - Cappella Maggiore
• Agenzia Imm.re Zanette - Colle Umberto
• Agenzia Imm.re La Pieve - Pieve di Soligo
• Agenzia Imm.re Il Maso - Follina

Un solo incarico, 12 professionisti al tuo fianco

Si precisa che gli indirizzi presenti negli annunci non sono identificativi dell'ubicazione esatta dell'immobile, ma danno un riferimento generico della zona al fine di tutelare la riservatezza e la privacy dei proprietari.

Per maggiori dettagli contattare l'agenzia. Rif. FZ200
Linea info whatsapp 3️⃣4️⃣8️⃣ 2️⃣6️⃣6️⃣3️⃣4️⃣7️⃣4️⃣

Caratteristiche

Codice
FZ200Q
Prezzo
128.000,00 EUR
Mq
118
Classe
VA
Locali
5,5
Camere
2
Bagni
2
Box
1
Mq Box
21
Stato Immobile
Abitabile
Riscaldamento
Autonomo
Tipo Riscaldam.
Caldaia
Tipo Impianto
Radiatori
Fonte Energetica
Metano
Acqua Calda
Autonoma
Raffrescamento
Split
Infissi
Legno Doppio Vetro
Persiana
Oscurante Legno
Accessori
Cassaforte, Doppi Vetri, Porta Blindata

VIDEO

MAPPA

Via Mario Fiore 999, Spresiano (TV)
Richiedi informazioni
Codice:
Nominativo: *
Telefono: *
Email: *
Descrivici l'immobile che stai vendendo. Ti contatteremo a breve per concordare insieme la migliore strategia per venderlo al meglio: *
Autorizzo il trattamento dei miei dati personali in base Regolamento UE n. 679/2016 - Privacy Policy
Invia
Cookie preference